Property
Account |
| Property ID: | 97754 | Abbreviated Legal Description: | 31 - E/2 SE SW NW TGW & SUB TO EZ |
| Geographic ID: | R23306-297-1140 | Agent Code: | |
| Type: | Real | | |
| Tax Area: | 112 - APPRAISER-OH Schl Dist, outside OH, improved, greater than 1 acre | Land Use Code | 11 |
| Open Space: | N | DFL | N |
| Historic Property: | N | Remodel Property: | N |
| Multi-Family Redevelopment: | N | | |
| Township: | 33 | Section: | 06 |
| Range: | R2 |
Location |
| Address: | 73 E TROXELL RD OAK HARBOR, WA 98277 | Mapsco: | |
| Neighborhood: | Cycle 6 | Map ID: | 588 |
| Neighborhood CD: | 6 |
Owner |
| Name: | ONEILL, NICOLETTE | Owner ID: | 317264 |
| Mailing Address: | 73 EAST TROXELL RD OAK HARBOR, WA 98277 | % Ownership: | 100.0000000000% |
| | | Exemptions: | |
Taxes and Assessment Details
Values
| (+) Improvement Homesite Value: | + | $0 | |
| (+) Improvement Non-Homesite Value: | + | $273,957 | |
| (+) Land Homesite Value: | + | $0 | |
| (+) Land Non-Homesite Value: | + | $300,000 | |
| (+) Curr Use (HS): | + | $0 | $0 |
| (+) Curr Use (NHS): | + | $0 | $0 |
| | | -------------------------- | |
| (=) Market Value: | = | $573,957 | |
| (–) Productivity Loss: | – | $0 | |
| | | -------------------------- | |
| (=) Subtotal: | = | $573,957 | |
| (+) Senior Appraised Value: | + | $0 | |
| (+) Non-Senior Appraised Value: | + | $573,957 | |
| | | -------------------------- | |
| (=) Total Appraised Value: | = | $573,957 | |
| (–) Senior Exemption Loss: | – | $0 | |
| (–) Exemption Loss: | – | $0 | |
| | | -------------------------- | |
| (=) Taxable Value: | = | $573,957 | |
Taxing Jurisdiction
| Owner: | ONEILL, NICOLETTE | | |
| % Ownership: | 100.0000000000% | | |
| Total Value: | $573,957 | | |
| Tax Area: | 112 - APPRAISER-OH Schl Dist, outside OH, improved, greater than 1 acre |
| CF | Conservation Futures | 0.0316035091 | $573,957 | $573,957 | $18.14 | | |
| CEM1 | Cemetery #1 | 0.0040320932 | $573,957 | $573,957 | $2.31 | | |
| FIRE2 | Fire & Rescue Dist #2 N Whidbey GEN | 0.5475949600 | $573,957 | $573,957 | $314.30 | | |
| HOBOND | Hospital BOND | 0.1910887512 | $573,957 | $573,957 | $109.68 | | |
| HOGEN | Hospital GEN | 0.3902502903 | $573,957 | $573,957 | $223.99 | | |
| CE | County Current Expense | 0.3708482477 | $573,957 | $573,957 | $212.85 | | |
| CR | County Roads | 0.4584763726 | $573,957 | $573,957 | $263.15 | | |
| ISLANDEMS | Hospital GEN (EMS) | 0.5000000000 | $573,957 | $573,957 | $286.98 | | |
| LIB | Library Sno-Isle GEN | 0.3153421757 | $573,957 | $573,957 | $180.99 | | |
| NWHIDPRMT | P & R N Whidbey GEN | 0.2004466701 | $573,957 | $573,957 | $115.05 | | |
| SCH201MO | School 201 Enrichment | 1.8559231640 | $573,957 | $573,957 | $1,065.22 | | |
| ST | State School | 1.3035497053 | $573,957 | $573,957 | $748.18 | | |
| ST2 | State School Part 2 | 0.8169543533 | $573,957 | $573,957 | $468.90 | | |
| | Total Tax Rate: | 6.9861102925 | | | | | |
| | | | | Taxes w/Current Exemptions: | $4,009.74 | | |
| | | | | Taxes w/o Exemptions: | $4,009.74 | | |
Improvement / Building
| Improvement #1: | RESIDENTIAL | State Code: | Y | 1545.3 sqft | Value: | $273,957 |
| Bathrooms: | 1 | Bedrooms: | 3 | | Ceiling: | TONGUE & GROOVE | Cooling: | HEAT PUMP/CONV/V | | Exterior Wall/Cover: | SHINGLE | Floor Covering: | CARPET/VINYL 80-20 | | Floor Structure: | WOOD W/SUBFLOOR | Foundation: | CONCRETE | | Interior Finish: | DRYWALL PAINT | Plumbing Fixture Cnt: | 6 | | Roof Slope: | 4" IN 12" | Roof Structure/Cover: | BEAM BUILT-UP ROCK |
|
| | Type | Description | Class CD | Sub Class CD | Year Built | Area |
| | BAS | BASE/MAIN FLOOR | 3 | 0 | 1980 | 1545.3 |
| | OWP | OPEN WOOD PORCH W/STEPS | 3 | 0 | 1980 | 494.2 |
| | OWP | OPEN WOOD PORCH W/STEPS | 3 | 0 | 1980 | 271.9 |
| | OWC | OPEN WOOD PORCH W/STEPS/ROOF/C | 3 | 0 | 1980 | 32.0 |
| | ENP | ENCLOSED PORCH | 3 | 0 | 1980 | 344.0 |
| | DGR | DETACHED GARAGE | 3 | 0 | 1980 | 780.0 |
| | oCB2 | CABIN FIN | 3 | 0 | 1980 | 0.0 |
| | OWP | OPEN WOOD PORCH W/STEPS | 3 | 0 | 1980 | 160.0 |
Sketch
Property Image
Land
| 1 | 32 | AC (03.01-09.99) | 4.7500 | 0.00 | 0.00 | 0.00 | 1.00 | $300,000 | $0 |
Roll Value History
| 2026 | N/A | N/A | N/A | N/A | N/A |
| 2025 | $273,957 | $300,000 | $0 | $573,957 | $573,957 |
| 2024 | $278,016 | $280,000 | $0 | $558,016 | $558,016 |
| 2023 | $282,073 | $270,000 | $0 | $552,073 | $552,073 |
| 2022 | $257,051 | $240,000 | $0 | $497,051 | $497,051 |
| 2021 | $228,964 | $175,000 | $0 | $403,964 | $403,964 |
| 2020 | $224,760 | $140,000 | $0 | $364,760 | $364,760 |
| 2019 | $171,806 | $200,000 | $0 | $371,806 | $371,806 |
| 2018 | $172,372 | $175,000 | $0 | $347,372 | $347,372 |
| 2017 | $173,506 | $140,000 | $0 | $313,506 | $313,506 |
| 2016 | $158,555 | $140,000 | $0 | $298,555 | $298,555 |
| 2015 | $160,763 | $120,000 | $0 | $280,763 | $280,763 |
| 2014 | $162,970 | $106,875 | $0 | $269,845 | $269,845 |
| 2013 | $165,177 | $106,875 | $0 | $272,052 | $272,052 |
| 2012 | $167,386 | $106,875 | $0 | $274,261 | $274,261 |
| 2011 | $169,594 | $118,750 | $0 | $288,344 | $288,344 |
| 2010 | $175,763 | $118,750 | $0 | $294,513 | $294,513 |
| 2009 | $182,843 | $118,750 | $0 | $301,593 | $301,593 |
| 2008 | $191,709 | $135,375 | $0 | $327,084 | $327,084 |
| 2007 | $194,926 | $135,375 | $0 | $330,301 | $330,301 |
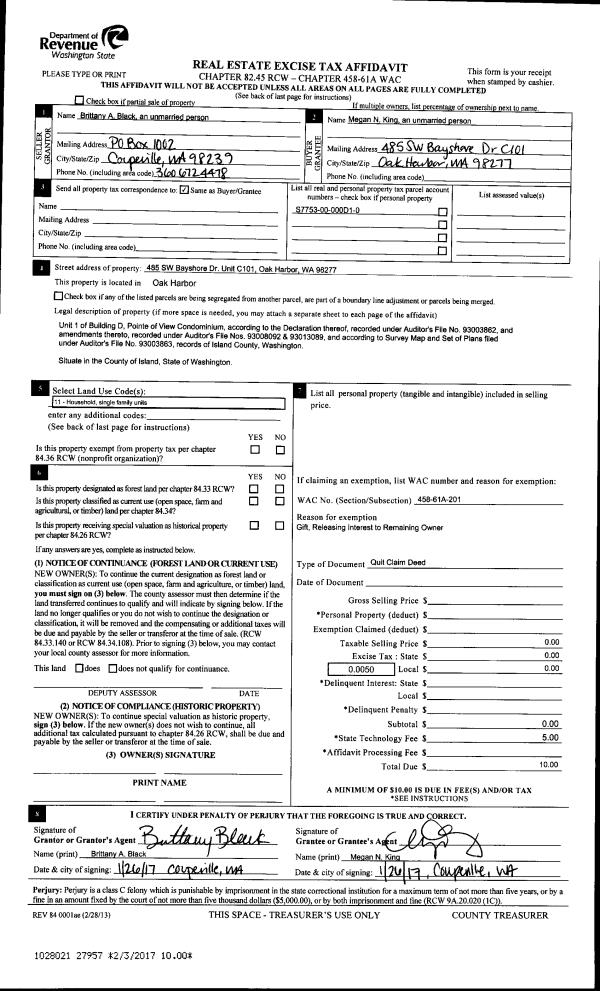
Deed and Sales History
| 1 | 06/19/2025 | QCD | Quit Claim Deed | DE BAKKER, PAUL | ONEILL, NICOLETTE | | | $281,309.00 | 64051 | 4587800 |
| 2 | 02/24/2017 | WD | Warranty Deed | REARDON, DANIEL P | DE BAKKER, PAUL | | | $314,000.00 | 28265 | 4418037 |
| 3 | 01/01/1900 | OTHER | Other - Misc. Documents | Unknown | REARDON, DANIEL P | | | $0.00 | 0 | 0 |
Payout Agreement
| No payout information available.. |