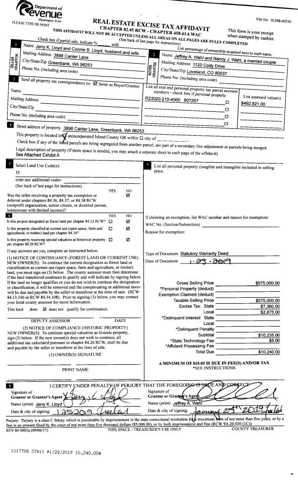
Property
Account |
| Property ID: | 97772 | Abbreviated Legal Description: | 30 - W/2 SE SW NW |
| Geographic ID: | R23306-298-0820 | Agent Code: | |
| Type: | Real | | |
| Tax Area: | 112 - APPRAISER-OH Schl Dist, outside OH, improved, greater than 1 acre | Land Use Code | 11 |
| Open Space: | N | DFL | N |
| Historic Property: | N | Remodel Property: | N |
| Multi-Family Redevelopment: | N | | |
| Township: | 33 | Section: | 06 |
| Range: | R2 |
Location |
| Address: | 61 E TROXELL RD OAK HARBOR, WA 98277 | Mapsco: | |
| Neighborhood: | Cycle 6 | Map ID: | 588 |
| Neighborhood CD: | 6 |
Owner |
| Name: | WALSER, ERIC | Owner ID: | 289974 |
| Mailing Address: | 61 E TROXELL RD OAK HARBOR, WA 98277 | % Ownership: | 100.0000000000% |
| | | Exemptions: | |
Taxes and Assessment Details
Values
| (+) Improvement Homesite Value: | + | $0 | |
| (+) Improvement Non-Homesite Value: | + | $145,319 | |
| (+) Land Homesite Value: | + | $0 | |
| (+) Land Non-Homesite Value: | + | $300,000 | |
| (+) Curr Use (HS): | + | $0 | $0 |
| (+) Curr Use (NHS): | + | $0 | $0 |
| | | -------------------------- | |
| (=) Market Value: | = | $445,319 | |
| (–) Productivity Loss: | – | $0 | |
| | | -------------------------- | |
| (=) Subtotal: | = | $445,319 | |
| (+) Senior Appraised Value: | + | $0 | |
| (+) Non-Senior Appraised Value: | + | $445,319 | |
| | | -------------------------- | |
| (=) Total Appraised Value: | = | $445,319 | |
| (–) Senior Exemption Loss: | – | $0 | |
| (–) Exemption Loss: | – | $0 | |
| | | -------------------------- | |
| (=) Taxable Value: | = | $445,319 | |
Taxing Jurisdiction
| Owner: | WALSER, ERIC | | |
| % Ownership: | 100.0000000000% | | |
| Total Value: | $445,319 | | |
| Tax Area: | 112 - APPRAISER-OH Schl Dist, outside OH, improved, greater than 1 acre |
| CF | Conservation Futures | 0.0316035091 | $445,319 | $445,319 | $14.07 | | |
| CEM1 | Cemetery #1 | 0.0040320932 | $445,319 | $445,319 | $1.80 | | |
| FIRE2 | Fire & Rescue Dist #2 N Whidbey GEN | 0.5475949600 | $445,319 | $445,319 | $243.85 | | |
| HOBOND | Hospital BOND | 0.1910887512 | $445,319 | $445,319 | $85.10 | | |
| HOGEN | Hospital GEN | 0.3902502903 | $445,319 | $445,319 | $173.79 | | |
| CE | County Current Expense | 0.3708482477 | $445,319 | $445,319 | $165.15 | | |
| CR | County Roads | 0.4584763726 | $445,319 | $445,319 | $204.17 | | |
| ISLANDEMS | Hospital GEN (EMS) | 0.5000000000 | $445,319 | $445,319 | $222.66 | | |
| LIB | Library Sno-Isle GEN | 0.3153421757 | $445,319 | $445,319 | $140.43 | | |
| NWHIDPRMT | P & R N Whidbey GEN | 0.2004466701 | $445,319 | $445,319 | $89.26 | | |
| SCH201MO | School 201 Enrichment | 1.8559231640 | $445,319 | $445,319 | $826.48 | | |
| ST | State School | 1.3035497053 | $445,319 | $445,319 | $580.50 | | |
| ST2 | State School Part 2 | 0.8169543533 | $445,319 | $445,319 | $363.81 | | |
| | Total Tax Rate: | 6.9861102925 | | | | | |
| | | | | Taxes w/Current Exemptions: | $3,111.07 | | |
| | | | | Taxes w/o Exemptions: | $3,111.07 | | |
Improvement / Building
| Improvement #1: | MANUFACTURED HOME | State Code: | Y | 1782.0 sqft | Value: | $145,319 |
| Bathrooms: | 0 | Bedrooms: | 0 | | Ceiling: | PLASTER PAINTED | Cooling: | EVAP NO DUCT | | Exterior Wall/Cover: | PLY/HARDBOARD T-111 | Floor Covering: | CARPET 100% | | Floor Structure: | SLAB ON GRADE | Foundation: | SLAB | | Heating: | FHA ELECTRIC | Interior Finish: | PLASTER | | Plumbing Fixture Cnt: | 1 | Roof Slope: | FLAT | | Roof Structure/Cover: | CJ ALUMINIUM HEAVY |   |   |
|
| | Type | Description | Class CD | Sub Class CD | Year Built | Area |
| | BAS | BASE/MAIN FLOOR | 4 | 0 | 1998 | 1782.0 |
| | OWP | OPEN WOOD PORCH W/STEPS | 4 | 0 | 1998 | 250.0 |
| | UTY | STORAGE/UTILITY | 4 | 0 | 1998 | 360.0 |
Sketch
Property Image
Land
| 1 | 32 | AC (03.01-09.99) | 4.7500 | 0.00 | 0.00 | 0.00 | 1.00 | $300,000 | $0 |
Roll Value History
| 2026 | N/A | N/A | N/A | N/A | N/A |
| 2025 | $145,319 | $300,000 | $0 | $445,319 | $445,319 |
| 2024 | $149,594 | $280,000 | $0 | $429,594 | $429,594 |
| 2023 | $133,800 | $270,000 | $0 | $403,800 | $403,800 |
| 2022 | $59,675 | $240,000 | $0 | $299,675 | $299,675 |
| 2021 | $53,564 | $175,000 | $0 | $228,564 | $228,564 |
| 2020 | $53,623 | $140,000 | $0 | $193,623 | $193,623 |
| 2019 | $43,520 | $200,000 | $0 | $243,520 | $243,520 |
| 2018 | $44,799 | $175,000 | $0 | $219,799 | $219,799 |
| 2017 | $46,080 | $140,000 | $0 | $186,080 | $186,080 |
| 2016 | $67,642 | $140,000 | $0 | $207,642 | $207,642 |
| 2015 | $69,495 | $120,000 | $0 | $189,495 | $189,495 |
| 2014 | $71,348 | $106,875 | $0 | $178,223 | $178,223 |
| 2013 | $73,201 | $106,875 | $0 | $180,076 | $180,076 |
| 2012 | $75,055 | $106,875 | $0 | $181,930 | $181,930 |
| 2011 | $76,908 | $118,750 | $0 | $195,658 | $195,658 |
| 2010 | $91,555 | $118,750 | $0 | $210,305 | $210,305 |
| 2009 | $96,030 | $118,750 | $0 | $214,780 | $214,780 |
| 2008 | $97,480 | $133,000 | $0 | $230,480 | $230,480 |
| 2007 | $99,796 | $133,000 | $0 | $232,796 | $232,796 |
Deed and Sales History
| 1 | 05/23/2019 | BARGSLD | Bargain And Sale Deed | FEDERAL NATIONAL MORTGAGE ASSOCIATION | WALSER, ERIC | | | $227,000.00 | 38718 | 4464252 |
| 2 | 02/06/2019 | SHERIFFD | Sheriff Deed | ISLAND COUNTY SHERIFF | FEDERAL NATIONAL MORTGAGE ASSOCIATION | | | $259,000.00 | 37511 | 4458872 |
| 3 | 06/17/2005 | WD | Warranty Deed | WEST, AMANDA D | FINDLEY, PATRICK D | | | $225,000.00 | 52952 | 4138608 |
| 4 | 10/18/2002 | WD | Warranty Deed | FLORES, EDWARD R | WEST, AMANDA D | | | $159,000.00 | 24201 | 4034880 |
| 5 | 10/16/2002 | ESTSEPPROP | Establish Separate Property | WEST, AMANDA D | WEST, AMANDA D | | | $0.00 | 24209 | 4034881 |
| 6 | 04/22/1998 | WD | Warranty Deed | FLORES, EDWARD R | FLORES, EDWARD R | | | $49,900.00 | 81575 | 98008502 |
| 7 | 04/01/1998 | OTHER | Other - Misc. Documents | FAKKEMA, CHARLES A | FLORES, EDWARD R | | | $0.00 | 81576 | 0 |
| 8 | 04/01/1996 | WD | Warranty Deed | FLORES, EDWARD R | FAKKEMA, CHARLES A | | | $30,000.00 | 61243 | 96006357 |
| 9 | 01/01/1900 | OTHER | Other - Misc. Documents | GUERRERO, JOHHNY L | FLORES, EDWARD R | | | $0.00 | 81575 | 98008502 |
| 10 | 01/01/1900 | OTHER | Other - Misc. Documents | Unknown | GUERRERO, JOHHNY L | | | $0.00 | 0 | 0 |
Payout Agreement
| No payout information available.. |