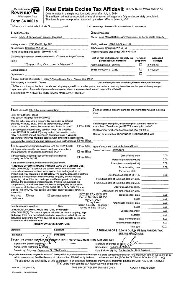
Property
Account |
| Property ID: | 98441 | Abbreviated Legal Description: | 57 - W163.5' OF E386.5' OF GL2 LY S OF DUG BAY RD EX W28' OF N160' |
| Geographic ID: | R23307-149-2330 | Agent Code: | |
| Type: | Real | | |
| Tax Area: | 112 - APPRAISER-OH Schl Dist, outside OH, improved, greater than 1 acre | Land Use Code | 11 |
| Open Space: | N | DFL | N |
| Historic Property: | N | Remodel Property: | N |
| Multi-Family Redevelopment: | N | | |
| Township: | 33 | Section: | 07 |
| Range: | R2 |
Location |
| Address: | 4140 JONES RD OAK HARBOR, WA 98277 | Mapsco: | |
| Neighborhood: | Cycle 6 | Map ID: | 591 |
| Neighborhood CD: | 6 |
Owner |
| Name: | FRANSSEN, MICHAEL J | Owner ID: | 199956 |
| Mailing Address: | CELESTE M FRANSSEN 4140 JONES RD OAK HARBOR, WA 98277-7711 | % Ownership: | 100.0000000000% |
| | | Exemptions: | |
Taxes and Assessment Details
Values
| (+) Improvement Homesite Value: | + | $0 | |
| (+) Improvement Non-Homesite Value: | + | $634,870 | |
| (+) Land Homesite Value: | + | $0 | |
| (+) Land Non-Homesite Value: | + | $270,000 | |
| (+) Curr Use (HS): | + | $0 | $0 |
| (+) Curr Use (NHS): | + | $0 | $0 |
| | | -------------------------- | |
| (=) Market Value: | = | $904,870 | |
| (–) Productivity Loss: | – | $0 | |
| | | -------------------------- | |
| (=) Subtotal: | = | $904,870 | |
| (+) Senior Appraised Value: | + | $0 | |
| (+) Non-Senior Appraised Value: | + | $904,870 | |
| | | -------------------------- | |
| (=) Total Appraised Value: | = | $904,870 | |
| (–) Senior Exemption Loss: | – | $0 | |
| (–) Exemption Loss: | – | $0 | |
| | | -------------------------- | |
| (=) Taxable Value: | = | $904,870 | |
Taxing Jurisdiction
| Owner: | FRANSSEN, MICHAEL J | | |
| % Ownership: | 100.0000000000% | | |
| Total Value: | $904,870 | | |
| Tax Area: | 112 - APPRAISER-OH Schl Dist, outside OH, improved, greater than 1 acre |
| CF | Conservation Futures | 0.0316035091 | $904,870 | $904,870 | $28.60 | | |
| CEM1 | Cemetery #1 | 0.0040320932 | $904,870 | $904,870 | $3.65 | | |
| FIRE2 | Fire & Rescue Dist #2 N Whidbey GEN | 0.5475949600 | $904,870 | $904,870 | $495.50 | | |
| HOBOND | Hospital BOND | 0.1910887512 | $904,870 | $904,870 | $172.91 | | |
| HOGEN | Hospital GEN | 0.3902502903 | $904,870 | $904,870 | $353.13 | | |
| CE | County Current Expense | 0.3708482477 | $904,870 | $904,870 | $335.57 | | |
| CR | County Roads | 0.4584763726 | $904,870 | $904,870 | $414.86 | | |
| ISLANDEMS | Hospital GEN (EMS) | 0.5000000000 | $904,870 | $904,870 | $452.44 | | |
| LIB | Library Sno-Isle GEN | 0.3153421757 | $904,870 | $904,870 | $285.34 | | |
| NWHIDPRMT | P & R N Whidbey GEN | 0.2004466701 | $904,870 | $904,870 | $181.38 | | |
| SCH201MO | School 201 Enrichment | 1.8559231640 | $904,870 | $904,870 | $1,679.37 | | |
| ST | State School | 1.3035497053 | $904,870 | $904,870 | $1,179.54 | | |
| ST2 | State School Part 2 | 0.8169543533 | $904,870 | $904,870 | $739.24 | | |
| | Total Tax Rate: | 6.9861102925 | | | | | |
| | | | | Taxes w/Current Exemptions: | $6,321.53 | | |
| | | | | Taxes w/o Exemptions: | $6,321.53 | | |
Improvement / Building
| Improvement #1: | RESIDENTIAL | State Code: | Y | 3990.7 sqft | Value: | $634,870 |
| Bathrooms: | 3 | Bedrooms: | 3 | | Ceiling: | DRYWALL PAINTED | Cooling: | HEAT PUMP/CONV/V | | Exterior Wall/Cover: | WOOD SIDING | Floor Covering: | VINYL/HARDWOOD 60-40 | | Floor Structure: | WOOD W/SUBFLOOR | Foundation: | CONCRETE | | Interior Finish: | DRYWALL PAINT | Plumbing Fixture Cnt: | 15 | | Roof Slope: | 6" IN 12" | Roof Structure/Cover: | CJ ASPHALT |
|
| | Type | Description | Class CD | Sub Class CD | Year Built | Area |
| | BAS | BASE/MAIN FLOOR | 4 | 0 | 1986 | 2073.8 |
| | OP4 | OPEN PORCH W/CEILING-ROOF | 4 | 0 | 1986 | 140.0 |
| | BIG | BUILT IN GARAGE | 4 | 0 | 1986 | 440.0 |
| | OCP | OPEN CARPORT | 4 | 0 | 1986 | 288.0 |
| | DWN | DOWNSTAIRS LIVING AREA | 4 | 0 | 1986 | 1466.9 |
| | DGR | DETACHED GARAGE | 4 | 0 | 1986 | 337.5 |
| | BGR | BASEMENT GARAGE | 4 | 0 | 1986 | 1115.0 |
| | CPD | OPEN CARPORT DIRT FLOOR | 4 | 0 | 1986 | 300.0 |
| | BAS | BASE/MAIN FLOOR | 3 | 0 | 1986 | 450.0 |
Sketch
Property Image
Land
| 1 | 17 | AC (01.01-02.00) | 1.8600 | 81021.60 | 0.00 | 0.00 | 1.00 | $270,000 | $0 |
Roll Value History
| 2026 | N/A | N/A | N/A | N/A | N/A |
| 2025 | $634,870 | $270,000 | $0 | $904,870 | $904,870 |
| 2024 | $642,496 | $260,000 | $0 | $902,496 | $902,496 |
| 2023 | $650,122 | $260,000 | $0 | $910,122 | $910,122 |
| 2022 | $567,995 | $220,000 | $0 | $787,995 | $787,995 |
| 2021 | $499,897 | $160,000 | $0 | $659,897 | $659,897 |
| 2020 | $488,567 | $130,000 | $0 | $618,567 | $618,567 |
| 2019 | $406,399 | $180,000 | $0 | $586,399 | $586,399 |
| 2018 | $407,593 | $160,000 | $0 | $567,593 | $567,593 |
| 2017 | $407,769 | $120,000 | $0 | $527,769 | $527,769 |
| 2016 | $354,833 | $100,000 | $0 | $454,833 | $454,833 |
| 2015 | $359,193 | $85,000 | $0 | $444,193 | $444,193 |
| 2014 | $363,551 | $80,000 | $0 | $443,551 | $443,551 |
| 2013 | $367,909 | $72,250 | $0 | $440,159 | $440,159 |
| 2012 | $372,267 | $72,250 | $0 | $444,517 | $444,517 |
| 2011 | $376,625 | $85,000 | $0 | $461,625 | $461,625 |
| 2010 | $392,678 | $85,000 | $0 | $477,678 | $477,678 |
| 2009 | $409,334 | $95,000 | $0 | $504,334 | $504,334 |
| 2008 | $416,839 | $104,000 | $0 | $520,839 | $520,839 |
Deed and Sales History
| 1 | 11/30/2007 | WD | Warranty Deed | TRUMBULL, WAYNE A | FRANSSEN, MICHAEL J | | | $495,000.00 | 73918 | 4217277 |
| 2 | 06/01/1985 | WD | Warranty Deed | MITCHELL, VELMA | TRUMBULL, WAYNE A | | | $15,000.00 | 51744 | 85006888 |
| 3 | 03/01/1981 | TRUSTEED | Trustee's Deed | MITCHELL, ALBERT L | MITCHELL, VELMA | | | $0.00 | 10723 | 380441 |
| 4 | 01/01/1900 | OTHER | Other - Misc. Documents | Unknown | MITCHELL, ALBERT L | | | $0.00 | 0 | 0 |
Payout Agreement
| No payout information available.. |