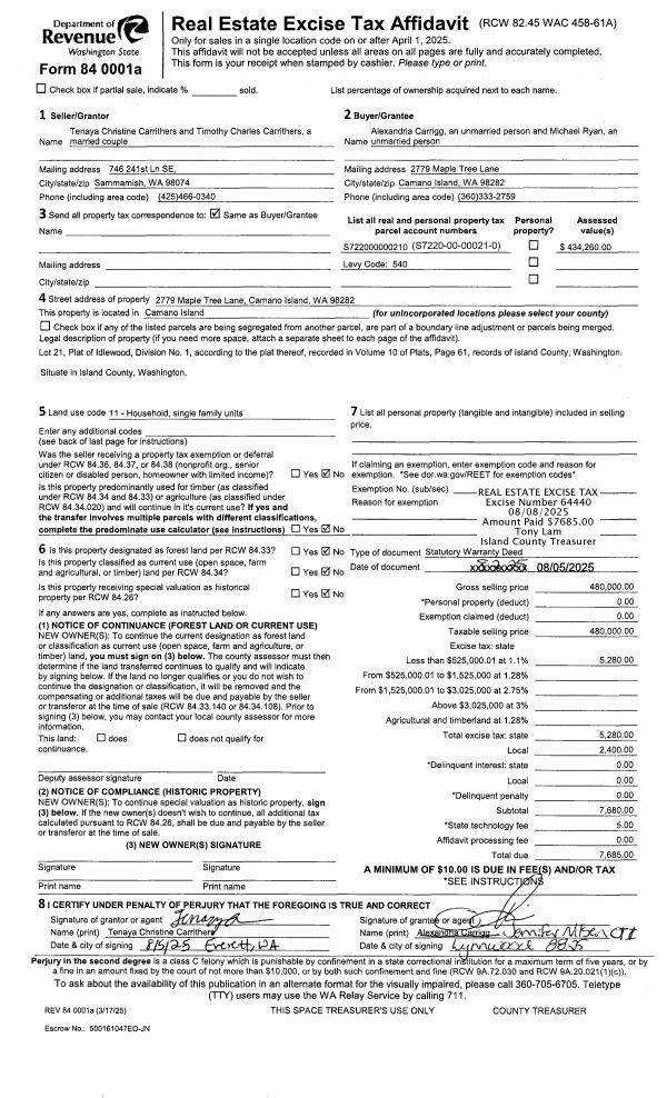
Property
Account |
| Property ID: | 9859 | Abbreviated Legal Description: | 17 W CROCKETT DC - BG S88*W 1725.68' FR NECR SD DC S1*E 1486.62' N87*E TO WLN RD NLY ALG RD TO NLN SD DLC W TPB EX N450' EX S540' |
| Geographic ID: | R13115-445-2650 | Agent Code: | |
| Type: | Real | | |
| Tax Area: | 312 - APPRAISER-Cpvl Schl Dist, outside Cpvl, improved, greater than 1 acre | Land Use Code | 11 |
| Open Space: | N | DFL | N |
| Historic Property: | N | Remodel Property: | N |
| Multi-Family Redevelopment: | N | | |
| Township: | 31 | Section: | 15 |
| Range: | R1 |
Location |
| Address: | 862 FORT CASEY RD COUPEVILLE, WA 98239 | Mapsco: | |
| Neighborhood: | Cycle 2 | Map ID: | 68 |
| Neighborhood CD: | 2 |
Owner |
| Name: | ROSSER, PAUL | Owner ID: | 309316 |
| Mailing Address: | JEANINE ROSSER 1229 SW 174TH PL NORMANDY PARK, WA 98166 | % Ownership: | 100.0000000000% |
| | | Exemptions: | |
Taxes and Assessment Details
Values
| (+) Improvement Homesite Value: | + | $0 | |
| (+) Improvement Non-Homesite Value: | + | $563,676 | |
| (+) Land Homesite Value: | + | $0 | |
| (+) Land Non-Homesite Value: | + | $355,000 | |
| (+) Curr Use (HS): | + | $0 | $0 |
| (+) Curr Use (NHS): | + | $0 | $0 |
| | | -------------------------- | |
| (=) Market Value: | = | $918,676 | |
| (–) Productivity Loss: | – | $0 | |
| | | -------------------------- | |
| (=) Subtotal: | = | $918,676 | |
| (+) Senior Appraised Value: | + | $0 | |
| (+) Non-Senior Appraised Value: | + | $918,676 | |
| | | -------------------------- | |
| (=) Total Appraised Value: | = | $918,676 | |
| (–) Senior Exemption Loss: | – | $0 | |
| (–) Exemption Loss: | – | $0 | |
| | | -------------------------- | |
| (=) Taxable Value: | = | $918,676 | |
Taxing Jurisdiction
| Owner: | ROSSER, PAUL | | |
| % Ownership: | 100.0000000000% | | |
| Total Value: | $918,676 | | |
| Tax Area: | 312 - APPRAISER-Cpvl Schl Dist, outside Cpvl, improved, greater than 1 acre |
| CF | Conservation Futures | 0.0316035091 | $918,676 | $918,676 | $29.03 | | |
| CEM2 | Cemetery #2 | 0.0095056933 | $918,676 | $918,676 | $8.73 | | |
| FIRE5 | Fire & Rescue Dist #5 C Whidbey GEN | 1.2008080668 | $918,676 | $918,676 | $1,103.15 | | |
| FIRE5BOND | Fire & Rescue Dist #5 C Whidbey BOND | 0.1400090713 | $918,676 | $918,676 | $128.62 | | |
| HOBOND | Hospital BOND | 0.1910887512 | $918,676 | $918,676 | $175.55 | | |
| HOGEN | Hospital GEN | 0.3902502903 | $918,676 | $918,676 | $358.51 | | |
| CE | County Current Expense | 0.3708482477 | $918,676 | $918,676 | $340.69 | | |
| CR | County Roads | 0.4584763726 | $918,676 | $918,676 | $421.19 | | |
| ISLANDEMS | Hospital GEN (EMS) | 0.5000000000 | $918,676 | $918,676 | $459.34 | | |
| LIB | Library Sno-Isle GEN | 0.3153421757 | $918,676 | $918,676 | $289.70 | | |
| LIBCAP | Library Sno-Isle BOND (Cap Fac Imp Area) | 0.0543427938 | $918,676 | $918,676 | $49.92 | | |
| POCOUP | Port of Coupeville GEN | 0.1093371703 | $918,676 | $918,676 | $100.45 | | |
| POCOUPIDD | Port of Coupeville IDD | 0.3409740022 | $918,676 | $918,676 | $313.24 | | |
| COUPSDTECH | School 204 CP (TECH) | 0.7545480007 | $918,676 | $918,676 | $693.19 | | |
| SCH204MO | School 204 Enrichment | 0.6716186034 | $918,676 | $918,676 | $617.00 | | |
| ST | State School | 1.3035497053 | $918,676 | $918,676 | $1,197.54 | | |
| ST2 | State School Part 2 | 0.8169543533 | $918,676 | $918,676 | $750.52 | | |
| | Total Tax Rate: | 7.6592568070 | | | | | |
| | | | | Taxes w/Current Exemptions: | $7,036.37 | | |
| | | | | Taxes w/o Exemptions: | $7,036.37 | | |
Improvement / Building
| Improvement #1: | RESIDENTIAL | State Code: | Y | 3240.0 sqft | Value: | $563,676 |
| Bathrooms: | 3 | Bedrooms: | 3 | | Ceiling: | TONGUE & GROOVE | Exterior Wall/Cover: | WOOD SIDING | | Floor Covering: | SOFTWOOD 100% | Floor Structure: | WOOD W/SUBFLOOR | | Foundation: | CONCRETE | Heating: | BASEBOARD ELECTRIC | | Interior Finish: | TONGUE & GROOVE DRYWALL 40/60 | Plumbing Fixture Cnt: | 13 | | Roof Slope: | 8" IN 12" | Roof Structure/Cover: | BEAM ASPHALT |
|
| | Type | Description | Class CD | Sub Class CD | Year Built | Area |
| | BAS | BASE/MAIN FLOOR | 4 | 0 | 1995 | 1350.0 |
| | DGR | DETACHED GARAGE | 4 | 0 | 1995 | 336.0 |
| | OCP | OPEN CARPORT | 4 | 0 | 1995 | 155.0 |
| | UPS | UPPER STORY | 4 | 0 | 1995 | 630.0 |
| | OWP | OPEN WOOD PORCH W/STEPS | 4 | 0 | 1995 | 808.9 |
| | OWR | OPEN WOOD PORCH W/STEPS/ROOF | 4 | 0 | 1995 | 32.0 |
| | UPS | UPPER STORY | 4 | 0 | 1995 | 1260.0 |
| | ENP | ENCLOSED PORCH | 4 | 0 | 1995 | 85.0 |
| | ENP | ENCLOSED PORCH | 4 | 0 | 1995 | 108.0 |
| | OWP | OPEN WOOD PORCH W/STEPS | 4 | 0 | 1995 | 192.0 |
Sketch
| No sketches available for this property. |
Property Image
Land
| 1 | 91 | UNDEVELOPED LAND-METES AND BOUNDS | 9.0000 | 392040.00 | 0.00 | 0.00 | 1.00 | $135,000 | $0 |
| 2 | HS | HOMESITE | 1.0000 | 43560.00 | 0.00 | 0.00 | 1.00 | $220,000 | $0 |
Roll Value History
| 2026 | N/A | N/A | N/A | N/A | N/A |
| 2025 | $563,676 | $355,000 | $0 | $918,676 | $918,676 |
| 2024 | $550,392 | $310,000 | $0 | $860,392 | $860,392 |
| 2023 | $482,430 | $290,000 | $0 | $772,430 | $772,430 |
| 2022 | $442,246 | $260,000 | $0 | $702,246 | $702,246 |
| 2021 | $389,235 | $225,000 | $0 | $614,235 | $614,235 |
| 2020 | $380,481 | $215,000 | $0 | $595,481 | $595,481 |
| 2019 | $309,885 | $250,000 | $0 | $559,885 | $559,885 |
| 2018 | $209,195 | $220,000 | $0 | $429,195 | $429,195 |
| 2017 | $210,559 | $200,000 | $0 | $410,559 | $410,559 |
| 2016 | $213,288 | $200,000 | $0 | $413,288 | $413,288 |
| 2015 | $216,021 | $250,000 | $0 | $466,021 | $466,021 |
| 2014 | $218,750 | $250,000 | $0 | $468,750 | $468,750 |
| 2013 | $221,480 | $243,000 | $0 | $464,480 | $464,480 |
| 2012 | $224,544 | $243,000 | $0 | $467,544 | $467,544 |
| 2011 | $227,276 | $270,000 | $0 | $497,276 | $497,276 |
| 2010 | $233,951 | $270,000 | $0 | $503,951 | $503,951 |
| 2009 | $243,726 | $300,000 | $0 | $543,726 | $543,726 |
| 2008 | $246,665 | $320,000 | $0 | $566,665 | $566,665 |
| 2007 | $249,603 | $320,000 | $0 | $569,603 | $569,603 |
Deed and Sales History
| 1 | 07/07/2023 | WD | Warranty Deed | WICKER, VERNON E | ROSSER, PAUL | | | $950,000.00 | 57313 | 4562286 |
| 2 | 10/01/1989 | WD | Warranty Deed | MURRAY, RICHARD | WICKER, VERNON E | | | $33,000.00 | 94944 | 89015975 |
| 3 | 01/01/1900 | OTHER | Other - Misc. Documents | Unknown | MURRAY, RICHARD | | | $0.00 | 0 | 0 |
Payout Agreement
| No payout information available.. |