Property
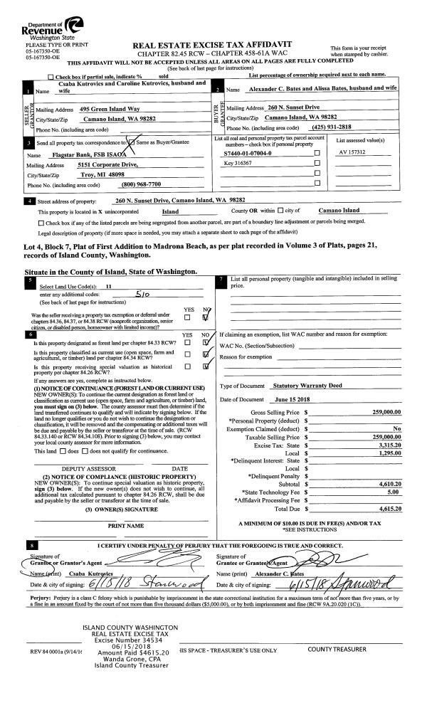
Account |
| Property ID: | 98600 | Abbreviated Legal Description: | 70 - IN GL3: BG NWCR GL3 E780' S TO NLN RD W ALG NLN RD TO SWCR BRYANT TR AF#260203 TPB N ALG WLN 560 TO NWCR SD TR W390' M/L TO WLN GL3 SLY TO NLN RD ELY ALG RD TPB |
| Geographic ID: | R23307-191-2840 | Agent Code: | |
| Type: | Real | | |
| Tax Area: | 112 - APPRAISER-OH Schl Dist, outside OH, improved, greater than 1 acre | Land Use Code | 11 |
| Open Space: | N | DFL | N |
| Historic Property: | N | Remodel Property: | N |
| Multi-Family Redevelopment: | N | | |
| Township: | 33 | Section: | 07 |
| Range: | R2 |
Location |
| Address: | 4149 JONES RD OAK HARBOR, WA 98277 | Mapsco: | |
| Neighborhood: | Cycle 6 | Map ID: | 592 |
| Neighborhood CD: | 6 |
Owner |
| Name: | RISELVATO, FRANK | Owner ID: | 285941 |
| Mailing Address: | CYNTHIA RISELVATO 4149 JONES RD OAK HARBOR, WA 98277 | % Ownership: | 100.0000000000% |
| | | Exemptions: | |
Taxes and Assessment Details
Values
| (+) Improvement Homesite Value: | + | $0 | |
| (+) Improvement Non-Homesite Value: | + | $395,742 | |
| (+) Land Homesite Value: | + | $0 | |
| (+) Land Non-Homesite Value: | + | $340,000 | |
| (+) Curr Use (HS): | + | $0 | $0 |
| (+) Curr Use (NHS): | + | $0 | $0 |
| | | -------------------------- | |
| (=) Market Value: | = | $735,742 | |
| (–) Productivity Loss: | – | $0 | |
| | | -------------------------- | |
| (=) Subtotal: | = | $735,742 | |
| (+) Senior Appraised Value: | + | $0 | |
| (+) Non-Senior Appraised Value: | + | $735,742 | |
| | | -------------------------- | |
| (=) Total Appraised Value: | = | $735,742 | |
| (–) Senior Exemption Loss: | – | $0 | |
| (–) Exemption Loss: | – | $0 | |
| | | -------------------------- | |
| (=) Taxable Value: | = | $735,742 | |
Taxing Jurisdiction
| Owner: | RISELVATO, FRANK | | |
| % Ownership: | 100.0000000000% | | |
| Total Value: | $735,742 | | |
| Tax Area: | 112 - APPRAISER-OH Schl Dist, outside OH, improved, greater than 1 acre |
| CF | Conservation Futures | 0.0316035091 | $735,742 | $735,742 | $23.25 | | |
| CEM1 | Cemetery #1 | 0.0040320932 | $735,742 | $735,742 | $2.97 | | |
| FIRE2 | Fire & Rescue Dist #2 N Whidbey GEN | 0.5475949600 | $735,742 | $735,742 | $402.89 | | |
| HOBOND | Hospital BOND | 0.1910887512 | $735,742 | $735,742 | $140.59 | | |
| HOGEN | Hospital GEN | 0.3902502903 | $735,742 | $735,742 | $287.12 | | |
| CE | County Current Expense | 0.3708482477 | $735,742 | $735,742 | $272.85 | | |
| CR | County Roads | 0.4584763726 | $735,742 | $735,742 | $337.32 | | |
| ISLANDEMS | Hospital GEN (EMS) | 0.5000000000 | $735,742 | $735,742 | $367.87 | | |
| LIB | Library Sno-Isle GEN | 0.3153421757 | $735,742 | $735,742 | $232.01 | | |
| NWHIDPRMT | P & R N Whidbey GEN | 0.2004466701 | $735,742 | $735,742 | $147.48 | | |
| SCH201MO | School 201 Enrichment | 1.8559231640 | $735,742 | $735,742 | $1,365.48 | | |
| ST | State School | 1.3035497053 | $735,742 | $735,742 | $959.08 | | |
| ST2 | State School Part 2 | 0.8169543533 | $735,742 | $735,742 | $601.07 | | |
| | Total Tax Rate: | 6.9861102925 | | | | | |
| | | | | Taxes w/Current Exemptions: | $5,139.98 | | |
| | | | | Taxes w/o Exemptions: | $5,139.98 | | |
Improvement / Building
| Improvement #1: | RESIDENTIAL | State Code: | Y | 2204.0 sqft | Value: | $395,742 |
| Bathrooms: | 2.25 | Bedrooms: | 3 | | Ceiling: | DRYWALL PAINTED | Cooling: | HEAT PUMP/CONV/V | | Exterior Wall/Cover: | CEMENT FIBER | Floor Covering: | HARDWOOD/CARP 60-40 | | Floor Structure: | WOOD W/SUBFLOOR | Foundation: | CONCRETE | | Interior Finish: | DRYWALL PAINT | Plumbing Fixture Cnt: | 11 | | Roof Slope: | FLAT | Roof Structure/Cover: | CJ COMP ROLL |
|
| | Type | Description | Class CD | Sub Class CD | Year Built | Area |
| | BAS | BASE/MAIN FLOOR | 3 | 0 | 1950 | 1342.0 |
| | OP2 | OPEN PORCH W/STEPS | 3 | 0 | 1950 | 78.0 |
| | OWP | OPEN WOOD PORCH W/STEPS | 3 | 0 | 1950 | 246.6 |
| | BGR | BASEMENT GARAGE | 3 | 0 | 1950 | 480.0 |
| | DWN | DOWNSTAIRS LIVING AREA | 3 | 0 | 1950 | 862.0 |
| | BGR | BASEMENT GARAGE | 3 | 0 | 1950 | 861.0 |
| | UTY | STORAGE/UTILITY | 3 | 0 | 1950 | 861.0 |
| | OWP | OPEN WOOD PORCH W/STEPS | 3 | 0 | 1950 | 360.0 |
| | OWP | OPEN WOOD PORCH W/STEPS | 3 | 0 | 1950 | 51.0 |
Sketch
Property Image
Land
| 1 | 32 | AC (03.01-09.99) | 5.0000 | 0.00 | 0.00 | 0.00 | 1.00 | $340,000 | $0 |
Roll Value History
| 2026 | N/A | N/A | N/A | N/A | N/A |
| 2025 | $395,742 | $340,000 | $0 | $735,742 | $735,742 |
| 2024 | $400,613 | $320,000 | $0 | $720,613 | $720,613 |
| 2023 | $405,482 | $320,000 | $0 | $725,482 | $725,482 |
| 2022 | $376,206 | $300,000 | $0 | $676,206 | $676,206 |
| 2021 | $331,005 | $200,000 | $0 | $531,005 | $531,005 |
| 2020 | $322,895 | $160,000 | $0 | $482,895 | $482,895 |
| 2019 | $252,967 | $220,000 | $0 | $472,967 | $472,967 |
| 2018 | $253,692 | $200,000 | $0 | $453,692 | $453,692 |
| 2017 | $130,881 | $165,000 | $0 | $295,881 | $295,881 |
| 2016 | $127,863 | $140,000 | $0 | $267,863 | $267,863 |
| 2015 | $129,827 | $120,000 | $0 | $249,827 | $249,827 |
| 2014 | $131,789 | $100,000 | $0 | $231,789 | $231,789 |
| 2013 | $129,854 | $112,500 | $0 | $242,354 | $242,354 |
| 2012 | $131,817 | $112,500 | $0 | $244,317 | $244,317 |
| 2011 | $133,780 | $125,000 | $0 | $258,780 | $258,780 |
| 2010 | $175,026 | $125,000 | $0 | $300,026 | $300,026 |
| 2009 | $169,859 | $125,000 | $0 | $294,859 | $294,859 |
| 2008 | $172,247 | $142,500 | $0 | $314,747 | $314,747 |
| 2007 | $174,638 | $142,500 | $0 | $317,138 | $317,138 |
Deed and Sales History
| 1 | 06/19/2018 | WD | Warranty Deed | HYTTE HOMES LLC | RISELVATO, FRANK | | | $450,000.00 | 34922 | 4447643 |
| 2 | 11/30/2016 | TRUSTEED | Trustee's Deed | CHURCHILL, GEORGE B / VICKIE I | HYTTE HOMES LLC | | | $219,000.00 | 27174 | 4412649 |
| 3 | 06/01/1994 | REC | Real Estate Contract | SMALL, SELDEN M | CHURCHILL, GEORGE B | | | $95,000.00 | 42544 | 94014178 |
Payout Agreement
| No payout information available.. |