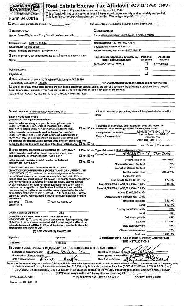
Property
Account |
| Property ID: | 9868 | Abbreviated Legal Description: | 1 S CROCKETT DC - BG NW CR S CROCKETT DC N88*E1432.28' S1657.57' S87*W1432.28' N1662.08' TO POB EX S15' FOR CO RD TGW & SUB SCENIC EZ TO USA |
| Geographic ID: | R13115-447-4570 | Agent Code: | |
| Type: | Real | | |
| Tax Area: | 311 - APPRAISER-Cpvl Schl Dist, outside Cpvl, vacant, greater than 50 acres | Land Use Code | 83 |
| Open Space: | Y | DFL | N |
| Historic Property: | N | Remodel Property: | N |
| Multi-Family Redevelopment: | N | | |
| Township: | 31 | Section: | 15 |
| Range: | R1 |
Location |
| Address: | | Mapsco: | |
| Neighborhood: | Cycle 2 | Map ID: | 69 |
| Neighborhood CD: | 2 |
Owner |
| Name: | GTG FARM LLC | Owner ID: | 297484 |
| Mailing Address: | 776 FORT CASEY RD COUPEVILLE, WA 98239 | % Ownership: | 100.0000000000% |
| | | Exemptions: | |
Taxes and Assessment Details
Values
| (+) Improvement Homesite Value: | + | $0 | |
| (+) Improvement Non-Homesite Value: | + | $0 | |
| (+) Land Homesite Value: | + | $0 | |
| (+) Land Non-Homesite Value: | + | $0 | |
| (+) Curr Use (HS): | + | $0 | $0 |
| (+) Curr Use (NHS): | + | $162,210 | $33,030 |
| | | -------------------------- | |
| (=) Market Value: | = | $162,210 | |
| (–) Productivity Loss: | – | $129,180 | |
| | | -------------------------- | |
| (=) Subtotal: | = | $33,030 | |
| (+) Senior Appraised Value: | + | $0 | |
| (+) Non-Senior Appraised Value: | + | $33,030 | |
| | | -------------------------- | |
| (=) Total Appraised Value: | = | $33,030 | |
| (–) Senior Exemption Loss: | – | $0 | |
| (–) Exemption Loss: | – | $0 | |
| | | -------------------------- | |
| (=) Taxable Value: | = | $33,030 | |
Taxing Jurisdiction
| Owner: | GTG FARM LLC | | |
| % Ownership: | 100.0000000000% | | |
| Total Value: | $162,210 | | |
| Tax Area: | 311 - APPRAISER-Cpvl Schl Dist, outside Cpvl, vacant, greater than 50 acres |
| CF | Conservation Futures | 0.0316035091 | $33,030 | $33,030 | $1.04 | | |
| CEM2 | Cemetery #2 | 0.0095056933 | $33,030 | $33,030 | $0.31 | | |
| HOBOND | Hospital BOND | 0.1910887512 | $33,030 | $33,030 | $6.31 | | |
| HOGEN | Hospital GEN | 0.3902502903 | $33,030 | $33,030 | $12.89 | | |
| CE | County Current Expense | 0.3708482477 | $33,030 | $33,030 | $12.25 | | |
| CR | County Roads | 0.4584763726 | $33,030 | $33,030 | $15.14 | | |
| ISLANDEMS | Hospital GEN (EMS) | 0.5000000000 | $33,030 | $33,030 | $16.52 | | |
| LIB | Library Sno-Isle GEN | 0.3153421757 | $33,030 | $33,030 | $10.42 | | |
| LIBCAP | Library Sno-Isle BOND (Cap Fac Imp Area) | 0.0543427938 | $33,030 | $33,030 | $1.79 | | |
| POCOUP | Port of Coupeville GEN | 0.1093371703 | $33,030 | $33,030 | $3.61 | | |
| POCOUPIDD | Port of Coupeville IDD | 0.3409740022 | $33,030 | $33,030 | $11.26 | | |
| COUPSDTECH | School 204 CP (TECH) | 0.7545480007 | $33,030 | $33,030 | $24.92 | | |
| SCH204MO | School 204 Enrichment | 0.6716186034 | $33,030 | $33,030 | $22.18 | | |
| ST | State School | 1.3035497053 | $33,030 | $33,030 | $43.06 | | |
| ST2 | State School Part 2 | 0.8169543533 | $33,030 | $33,030 | $26.98 | | |
| | Total Tax Rate: | 6.3184396689 | | | | | |
| | | | | Taxes w/Current Exemptions: | $208.68 | | |
| | | | | Taxes w/o Exemptions: | $208.68 | | |
Improvement / Building
Sketch
| No sketches available for this property. |
Property Image
Land
| 1 | 37 | AC (31.00-+) | 54.0700 | 2355289.20 | 0.00 | 0.00 | 1.00 | $162,210 | $33,030 |
Roll Value History
| 2026 | N/A | N/A | N/A | N/A | N/A |
| 2025 | $0 | $162,210 | $33,030 | $33,030 | $33,030 |
| 2024 | $0 | $162,210 | $33,030 | $33,030 | $33,030 |
| 2023 | $0 | $162,210 | $33,030 | $33,030 | $33,030 |
| 2022 | $0 | $162,210 | $33,030 | $33,030 | $33,030 |
| 2021 | $0 | $162,210 | $33,030 | $33,030 | $33,030 |
| 2020 | $0 | $162,210 | $33,030 | $33,030 | $33,030 |
| 2019 | $0 | $162,210 | $33,030 | $33,030 | $33,030 |
| 2018 | $0 | $162,210 | $33,030 | $33,030 | $33,030 |
| 2017 | $0 | $450,000 | $33,030 | $33,030 | $33,030 |
| 2016 | $0 | $450,000 | $33,030 | $33,030 | $33,030 |
| 2015 | $0 | $459,595 | $33,030 | $33,030 | $33,030 |
| 2014 | $0 | $459,595 | $33,030 | $33,030 | $33,030 |
| 2013 | $0 | $459,595 | $33,030 | $33,030 | $33,030 |
| 2012 | $0 | $459,595 | $33,030 | $33,030 | $33,030 |
| 2011 | $0 | $540,700 | $33,030 | $33,030 | $33,030 |
| 2010 | $0 | $540,700 | $33,030 | $33,030 | $33,030 |
| 2009 | $0 | $540,700 | $33,030 | $33,030 | $33,030 |
| 2008 | $0 | $567,735 | $33,030 | $33,030 | $33,030 |
| 2007 | $0 | $445,537 | $33,030 | $33,030 | $33,030 |
Deed and Sales History
| 1 | 07/12/2020 | WD | Warranty Deed | BOYER UNDIV 1/3 INT, THEODORE C | GTG FARM LLC | | | $0.00 | 47736 | 4516307 |
| 2 | 11/20/2012 | QCD | Quit Claim Deed | BOYER JR, FREEMAN E | BOYER UNDIV 1/3 INT, THEODORE C | | | $0.00 | 9604 | 4328172 |
| 3 | 07/15/2009 | PRD | Personal Representatives Deed | BOYER, FREEMAN E | BOYER JR, FREEMAN E | | | $0.00 | 92669 | 4262990 |
| 4 | 07/01/1989 | EZ | Easement | BOYER, FREEMAN E | BOYER, FREEMAN E | | | $0.00 | 93034 | 89010245 |
| 5 | 01/01/1900 | OTHER | Other - Misc. Documents | Unknown | BOYER, FREEMAN E | | | $0.00 | 0 | 0 |
Payout Agreement
| No payout information available.. |