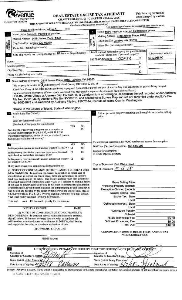
Property
Account |
| Property ID: | 99057 | Abbreviated Legal Description: | 1 - S/2 NE NE |
| Geographic ID: | R23307-429-4610 | Agent Code: | |
| Type: | Real | | |
| Tax Area: | 112 - APPRAISER-OH Schl Dist, outside OH, improved, greater than 1 acre | Land Use Code | 11 |
| Open Space: | N | DFL | N |
| Historic Property: | N | Remodel Property: | N |
| Multi-Family Redevelopment: | N | | |
| Township: | 33 | Section: | 07 |
| Range: | R2 |
Location |
| Address: | 4313 JONES RD OAK HARBOR, WA 98277 | Mapsco: | |
| Neighborhood: | Cycle 6 | Map ID: | 594 |
| Neighborhood CD: | 6 |
Owner |
| Name: | BROWN, KARLA RUTH | Owner ID: | 286468 |
| Mailing Address: | PO BOX 813 OAK HARBOR, WA 98277 | % Ownership: | 100.0000000000% |
| | | Exemptions: | |
Taxes and Assessment Details
Values
| (+) Improvement Homesite Value: | + | $0 | |
| (+) Improvement Non-Homesite Value: | + | $248,074 | |
| (+) Land Homesite Value: | + | $0 | |
| (+) Land Non-Homesite Value: | + | $450,000 | |
| (+) Curr Use (HS): | + | $0 | $0 |
| (+) Curr Use (NHS): | + | $0 | $0 |
| | | -------------------------- | |
| (=) Market Value: | = | $698,074 | |
| (–) Productivity Loss: | – | $0 | |
| | | -------------------------- | |
| (=) Subtotal: | = | $698,074 | |
| (+) Senior Appraised Value: | + | $0 | |
| (+) Non-Senior Appraised Value: | + | $698,074 | |
| | | -------------------------- | |
| (=) Total Appraised Value: | = | $698,074 | |
| (–) Senior Exemption Loss: | – | $0 | |
| (–) Exemption Loss: | – | $0 | |
| | | -------------------------- | |
| (=) Taxable Value: | = | $698,074 | |
Taxing Jurisdiction
| Owner: | BROWN, KARLA RUTH | | |
| % Ownership: | 100.0000000000% | | |
| Total Value: | $698,074 | | |
| Tax Area: | 112 - APPRAISER-OH Schl Dist, outside OH, improved, greater than 1 acre |
| CF | Conservation Futures | 0.0316035091 | $698,074 | $698,074 | $22.06 | | |
| CEM1 | Cemetery #1 | 0.0040320932 | $698,074 | $698,074 | $2.81 | | |
| FIRE2 | Fire & Rescue Dist #2 N Whidbey GEN | 0.5475949600 | $698,074 | $698,074 | $382.26 | | |
| HOBOND | Hospital BOND | 0.1910887512 | $698,074 | $698,074 | $133.39 | | |
| HOGEN | Hospital GEN | 0.3902502903 | $698,074 | $698,074 | $272.42 | | |
| CE | County Current Expense | 0.3708482477 | $698,074 | $698,074 | $258.88 | | |
| CR | County Roads | 0.4584763726 | $698,074 | $698,074 | $320.05 | | |
| ISLANDEMS | Hospital GEN (EMS) | 0.5000000000 | $698,074 | $698,074 | $349.04 | | |
| LIB | Library Sno-Isle GEN | 0.3153421757 | $698,074 | $698,074 | $220.13 | | |
| NWHIDPRMT | P & R N Whidbey GEN | 0.2004466701 | $698,074 | $698,074 | $139.93 | | |
| SCH201MO | School 201 Enrichment | 1.8559231640 | $698,074 | $698,074 | $1,295.57 | | |
| ST | State School | 1.3035497053 | $698,074 | $698,074 | $909.97 | | |
| ST2 | State School Part 2 | 0.8169543533 | $698,074 | $698,074 | $570.29 | | |
| | Total Tax Rate: | 6.9861102925 | | | | | |
| | | | | Taxes w/Current Exemptions: | $4,876.80 | | |
| | | | | Taxes w/o Exemptions: | $4,876.80 | | |
Improvement / Building
| Improvement #1: | MANUFACTURED HOME | State Code: | Y | 2748.0 sqft | Value: | $248,074 |
| Bathrooms: | 1 | Bedrooms: | 2 | | Ceiling: | PLASTER PAINTED | Cooling: | EVAP NO DUCT | | Exterior Wall/Cover: | VINYL | Floor Covering: | CARPET 100% | | Floor Structure: | SLAB ON GRADE | Foundation: | SLAB | | Heating: | FHA ELECTRIC | Interior Finish: | PLASTER | | Plumbing Fixture Cnt: | 1 | Roof Slope: | FLAT | | Roof Structure/Cover: | CJ ALUMINIUM HEAVY |   |   |
|
| | Type | Description | Class CD | Sub Class CD | Year Built | Area |
| | BAS | BASE/MAIN FLOOR | 5 | 0 | 2020 | 2748.0 |
| | OWP | OPEN WOOD PORCH W/STEPS | 5 | 0 | 2020 | 48.0 |
| | OWP | OPEN WOOD PORCH W/STEPS | 5 | 0 | 2020 | 20.0 |
| | UTY | STORAGE/UTILITY | 5 | 0 | 2020 | 336.0 |
Sketch
Property Image
Land
| 1 | 35 | AC (10.00-30.99) | 20.0000 | 871200.00 | 0.00 | 0.00 | 1.00 | $450,000 | $0 |
Roll Value History
| 2026 | N/A | N/A | N/A | N/A | N/A |
| 2025 | $248,074 | $450,000 | $0 | $698,074 | $698,074 |
| 2024 | $253,352 | $420,000 | $0 | $673,352 | $673,352 |
| 2023 | $222,613 | $400,000 | $0 | $622,613 | $622,613 |
| 2022 | $198,783 | $400,000 | $0 | $598,783 | $598,783 |
| 2021 | $174,638 | $250,000 | $0 | $424,638 | $424,638 |
| 2020 | $169,531 | $220,000 | $0 | $389,531 | $389,531 |
| 2019 | $0 | $220,000 | $0 | $220,000 | $220,000 |
| 2018 | $0 | $200,000 | $0 | $200,000 | $200,000 |
| 2017 | $0 | $200,000 | $0 | $200,000 | $200,000 |
| 2016 | $0 | $200,000 | $0 | $200,000 | $200,000 |
| 2015 | $0 | $200,000 | $0 | $200,000 | $200,000 |
| 2014 | $0 | $200,000 | $0 | $200,000 | $200,000 |
| 2013 | $0 | $200,000 | $0 | $200,000 | $200,000 |
| 2012 | $0 | $200,000 | $0 | $200,000 | $200,000 |
| 2011 | $0 | $200,000 | $0 | $200,000 | $200,000 |
| 2010 | $0 | $200,000 | $0 | $200,000 | $200,000 |
| 2009 | $0 | $240,000 | $0 | $240,000 | $240,000 |
| 2008 | $0 | $215,100 | $0 | $215,100 | $215,100 |
| 2007 | $0 | $215,100 | $0 | $215,100 | $215,100 |
Deed and Sales History
| 1 | 08/09/2018 | WD | Warranty Deed | LOMBARDO, STEVEN T | BROWN, KARLA RUTH | | | $250,000.00 | 35458 | 4449923 |
| 2 | 07/23/2014 | QCD | Quit Claim Deed | LOMBARDO, STEVEN T | LOMBARDO, STEVEN T | | | $0.00 | 35071 | 4448316 |
| 3 | 06/23/2014 | TRUSTEED | Trustee's Deed | BROWN TRUSTEE, BEVERLY C | LOMBARDO, STEVEN T | | | $0.00 | 15736 | 4361299 |
| 4 | 10/13/2010 | QCD | Quit Claim Deed | BROWN, BEVERLY C | BROWN TRUSTEE, BEVERLY C | | | $0.00 | 2660 | 4283460 |
| 5 | 04/26/2010 | WD | Warranty Deed | MADDOX, JEFFREY L M | BROWN, BEVERLY C | | | $150,000.00 | 990 | 4272874 |
| 6 | 04/19/2010 | QCD | Quit Claim Deed | MADDOX, JEFFREY L | MADDOX, JEFFREY L M | | | $0.00 | 989 | 4272873 |
| 7 | 08/01/1997 | WD | Warranty Deed | MADDOX, J L | MADDOX, JEFFREY L | | | $40,000.00 | 72677 | 97012646 |
| 8 | 01/01/1900 | OTHER | Other - Misc. Documents | Unknown | MADDOX, J L | | | $0.00 | 0 | 0 |
Payout Agreement
| No payout information available.. |