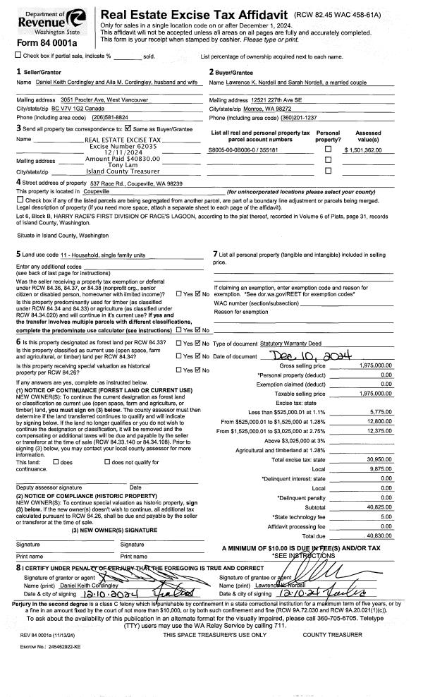
Property
Account |
| Property ID: | 99164 | Abbreviated Legal Description: | 12 - IN GL2:BG 350'N OF 1/4 CR SEC 7 & 8 E165' TPB S54* E TO ML SWLY ALG ML TP S OF TPB N TPB TGW EZ |
| Geographic ID: | R23308-268-0780 | Agent Code: | |
| Type: | Real | | |
| Tax Area: | 110 - APPRAISER-OH Schl Dist, outside OH, improved & 1 acre or less | Land Use Code | 11 |
| Open Space: | N | DFL | N |
| Historic Property: | N | Remodel Property: | N |
| Multi-Family Redevelopment: | N | | |
| Township: | 33 | Section: | 08 |
| Range: | R2 |
Location |
| Address: | 4230 JONES RD OAK HARBOR, WA 98277 | Mapsco: | |
| Neighborhood: | Cycle 6 | Map ID: | 596 |
| Neighborhood CD: | 6 |
Owner |
| Name: | MORRIS, KRISTINA R | Owner ID: | 311333 |
| Mailing Address: | TIMOTHY D MORRIS 4230 JONES RD OAK HARBOR, WA 98277 | % Ownership: | 100.0000000000% |
| | | Exemptions: | |
Taxes and Assessment Details
Values
| (+) Improvement Homesite Value: | + | $0 | |
| (+) Improvement Non-Homesite Value: | + | $304,032 | |
| (+) Land Homesite Value: | + | $0 | |
| (+) Land Non-Homesite Value: | + | $500,000 | |
| (+) Curr Use (HS): | + | $0 | $0 |
| (+) Curr Use (NHS): | + | $0 | $0 |
| | | -------------------------- | |
| (=) Market Value: | = | $804,032 | |
| (–) Productivity Loss: | – | $0 | |
| | | -------------------------- | |
| (=) Subtotal: | = | $804,032 | |
| (+) Senior Appraised Value: | + | $0 | |
| (+) Non-Senior Appraised Value: | + | $804,032 | |
| | | -------------------------- | |
| (=) Total Appraised Value: | = | $804,032 | |
| (–) Senior Exemption Loss: | – | $0 | |
| (–) Exemption Loss: | – | $0 | |
| | | -------------------------- | |
| (=) Taxable Value: | = | $804,032 | |
Taxing Jurisdiction
| Owner: | MORRIS, KRISTINA R | | |
| % Ownership: | 100.0000000000% | | |
| Total Value: | $804,032 | | |
| Tax Area: | 110 - APPRAISER-OH Schl Dist, outside OH, improved & 1 acre or less |
| CF | Conservation Futures | 0.0316035091 | $804,032 | $804,032 | $25.41 | | |
| CEM1 | Cemetery #1 | 0.0040320932 | $804,032 | $804,032 | $3.24 | | |
| FIRE2 | Fire & Rescue Dist #2 N Whidbey GEN | 0.5475949600 | $804,032 | $804,032 | $440.28 | | |
| HOBOND | Hospital BOND | 0.1910887512 | $804,032 | $804,032 | $153.64 | | |
| HOGEN | Hospital GEN | 0.3902502903 | $804,032 | $804,032 | $313.77 | | |
| CE | County Current Expense | 0.3708482477 | $804,032 | $804,032 | $298.17 | | |
| CR | County Roads | 0.4584763726 | $804,032 | $804,032 | $368.63 | | |
| ISLANDEMS | Hospital GEN (EMS) | 0.5000000000 | $804,032 | $804,032 | $402.02 | | |
| LIB | Library Sno-Isle GEN | 0.3153421757 | $804,032 | $804,032 | $253.55 | | |
| NWHIDPRMT | P & R N Whidbey GEN | 0.2004466701 | $804,032 | $804,032 | $161.17 | | |
| SCH201MO | School 201 Enrichment | 1.8559231640 | $804,032 | $804,032 | $1,492.22 | | |
| ST | State School | 1.3035497053 | $804,032 | $804,032 | $1,048.10 | | |
| ST2 | State School Part 2 | 0.8169543533 | $804,032 | $804,032 | $656.86 | | |
| | Total Tax Rate: | 6.9861102925 | | | | | |
| | | | | Taxes w/Current Exemptions: | $5,617.06 | | |
| | | | | Taxes w/o Exemptions: | $5,617.06 | | |
Improvement / Building
| Improvement #1: | RESIDENTIAL | State Code: | Y | 2034.3 sqft | Value: | $304,032 |
| Bathrooms: | 1.75 | Bedrooms: | 2 | | Ceiling: | TONGUE & GROOVE | Cooling: | HEAT PUMP/CONV/V | | Exterior Wall/Cover: | CEMENT FIBER | Floor Covering: | CARPET/VINYL 80-20 | | Floor Structure: | WOOD W/SUBFLOOR | Foundation: | CONCRETE BLOCKS | | Interior Finish: | PLASTER | Plumbing Fixture Cnt: | 9 | | Roof Slope: | 6" IN 12" | Roof Structure/Cover: | CJ ASPHALT |
|
| | Type | Description | Class CD | Sub Class CD | Year Built | Area |
| | BAS | BASE/MAIN FLOOR | 3 | 0 | 1928 | 1344.3 |
| | UB6 | BASEMENT UNFINISHED 6" | 3 | 0 | 1928 | 207.0 |
| | OP3 | OPEN PORCH W/ROOF | 3 | 0 | 1928 | 54.0 |
| | OWP | OPEN WOOD PORCH W/STEPS | 3 | 0 | 1928 | 414.0 |
| | OWP | OPEN WOOD PORCH W/STEPS | 3 | 0 | 1928 | 323.8 |
| | ENP | ENCLOSED PORCH | 3 | 0 | 1928 | 168.0 |
| | DWN | DOWNSTAIRS LIVING AREA | 3 | 0 | 1928 | 690.0 |
| | UTY | STORAGE/UTILITY | 3 | 0 | 1928 | 150.0 |
Sketch
Property Image
Land
| 1 | LB | LOW BANK | 0.1600 | 6969.60 | 125.00 | 0.00 | 1.00 | $500,000 | $0 |
Roll Value History
| 2026 | N/A | N/A | N/A | N/A | N/A |
| 2025 | $304,032 | $500,000 | $0 | $804,032 | $804,032 |
| 2024 | $308,071 | $500,000 | $0 | $808,071 | $808,071 |
| 2023 | $279,886 | $500,000 | $0 | $779,886 | $779,886 |
| 2022 | $255,651 | $450,000 | $0 | $705,651 | $705,651 |
| 2021 | $225,207 | $250,000 | $0 | $475,207 | $475,207 |
| 2020 | $220,055 | $250,000 | $0 | $470,055 | $470,055 |
| 2019 | $169,206 | $260,000 | $0 | $429,206 | $429,206 |
| 2018 | $169,739 | $250,000 | $0 | $419,739 | $419,739 |
| 2017 | $170,807 | $250,000 | $0 | $420,807 | $420,807 |
| 2016 | $109,995 | $250,000 | $0 | $359,995 | $359,995 |
| 2015 | $112,069 | $250,000 | $0 | $362,069 | $362,069 |
| 2014 | $114,145 | $250,000 | $0 | $364,145 | $364,145 |
| 2013 | $116,220 | $284,939 | $0 | $401,159 | $401,159 |
| 2012 | $118,297 | $284,939 | $0 | $403,236 | $403,236 |
| 2011 | $120,370 | $284,939 | $0 | $405,309 | $405,309 |
| 2010 | $127,515 | $284,939 | $0 | $412,454 | $412,454 |
| 2009 | $131,305 | $241,960 | $0 | $373,265 | $373,265 |
| 2008 | $133,454 | $241,960 | $0 | $375,414 | $375,414 |
| 2007 | $135,728 | $232,445 | $0 | $368,173 | $368,173 |
Deed and Sales History
| 1 | 12/07/2023 | WD | Warranty Deed | LOUNSBERRY, JACK A | MORRIS, KRISTINA R | | | $840,000.00 | 59129 | 4569071 |
| 2 | 04/01/1978 | OTHER | Other - Misc. Documents | Unknown | LOUNSBERRY, JACK A | | | $45,000.00 | 81581 | 3309880 |
Payout Agreement
| No payout information available.. |