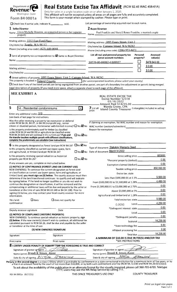
Property
Account |
| Property ID: | 99609 | Abbreviated Legal Description: | 47 - W270.10' OF SE SW EX S877' EX W40' OF N155' OF S1032' OF SE SW TGW & SUB EZ |
| Geographic ID: | R23317-113-1640 | Agent Code: | |
| Type: | Real | | |
| Tax Area: | 112 - APPRAISER-OH Schl Dist, outside OH, improved, greater than 1 acre | Land Use Code | 11 |
| Open Space: | N | DFL | N |
| Historic Property: | N | Remodel Property: | N |
| Multi-Family Redevelopment: | N | | |
| Township: | 33 | Section: | 17 |
| Range: | R2 |
Location |
| Address: | 515 WILDERNESS WAY OAK HARBOR, WA 98277 | Mapsco: | |
| Neighborhood: | Cycle 6 | Map ID: | 600 |
| Neighborhood CD: | 6 |
Owner |
| Name: | BIERER, RYAN J | Owner ID: | 313715 |
| Mailing Address: | ADRIANA L BIERER 515 WILDERNESS WAY OAK HARBOR, WA 98277 | % Ownership: | 100.0000000000% |
| | | Exemptions: | |
Taxes and Assessment Details
Values
| (+) Improvement Homesite Value: | + | $0 | |
| (+) Improvement Non-Homesite Value: | + | $145,356 | |
| (+) Land Homesite Value: | + | $0 | |
| (+) Land Non-Homesite Value: | + | $250,000 | |
| (+) Curr Use (HS): | + | $0 | $0 |
| (+) Curr Use (NHS): | + | $0 | $0 |
| | | -------------------------- | |
| (=) Market Value: | = | $395,356 | |
| (–) Productivity Loss: | – | $0 | |
| | | -------------------------- | |
| (=) Subtotal: | = | $395,356 | |
| (+) Senior Appraised Value: | + | $0 | |
| (+) Non-Senior Appraised Value: | + | $395,356 | |
| | | -------------------------- | |
| (=) Total Appraised Value: | = | $395,356 | |
| (–) Senior Exemption Loss: | – | $0 | |
| (–) Exemption Loss: | – | $0 | |
| | | -------------------------- | |
| (=) Taxable Value: | = | $395,356 | |
Taxing Jurisdiction
| Owner: | BIERER, RYAN J | | |
| % Ownership: | 100.0000000000% | | |
| Total Value: | $395,356 | | |
| Tax Area: | 112 - APPRAISER-OH Schl Dist, outside OH, improved, greater than 1 acre |
| CF | Conservation Futures | 0.0316035091 | $395,356 | $395,356 | $12.49 | | |
| CEM1 | Cemetery #1 | 0.0040320932 | $395,356 | $395,356 | $1.59 | | |
| FIRE2 | Fire & Rescue Dist #2 N Whidbey GEN | 0.5475949600 | $395,356 | $395,356 | $216.49 | | |
| HOBOND | Hospital BOND | 0.1910887512 | $395,356 | $395,356 | $75.55 | | |
| HOGEN | Hospital GEN | 0.3902502903 | $395,356 | $395,356 | $154.29 | | |
| CE | County Current Expense | 0.3708482477 | $395,356 | $395,356 | $146.62 | | |
| CR | County Roads | 0.4584763726 | $395,356 | $395,356 | $181.26 | | |
| ISLANDEMS | Hospital GEN (EMS) | 0.5000000000 | $395,356 | $395,356 | $197.68 | | |
| LIB | Library Sno-Isle GEN | 0.3153421757 | $395,356 | $395,356 | $124.67 | | |
| NWHIDPRMT | P & R N Whidbey GEN | 0.2004466701 | $395,356 | $395,356 | $79.25 | | |
| SCH201MO | School 201 Enrichment | 1.8559231640 | $395,356 | $395,356 | $733.75 | | |
| ST | State School | 1.3035497053 | $395,356 | $395,356 | $515.37 | | |
| ST2 | State School Part 2 | 0.8169543533 | $395,356 | $395,356 | $322.99 | | |
| | Total Tax Rate: | 6.9861102925 | | | | | |
| | | | | Taxes w/Current Exemptions: | $2,762.00 | | |
| | | | | Taxes w/o Exemptions: | $2,762.00 | | |
Improvement / Building
| Improvement #1: | MANUFACTURED HOME | State Code: | Y | 1775.3 sqft | Value: | $145,356 |
| Bathrooms: | 2 | Bedrooms: | 3 | | Ceiling: | DRYWALL PAINTED | Cooling: | HEAT PUMP/CONV/V | | Exterior Wall/Cover: | PLY/HARDBOARD T-111 | Floor Covering: | CARPET/VINYL 20-80 | | Floor Structure: | SLAB ON GRADE | Foundation: | SLAB | | Interior Finish: | DRYWALL PAINT | Plumbing Fixture Cnt: | 9 | | Roof Slope: | 4" IN 12" | Roof Structure/Cover: | CJ ASPHALT |
|
| | Type | Description | Class CD | Sub Class CD | Year Built | Area |
| | BAS | BASE/MAIN FLOOR | 4 | 0 | 1990 | 1775.3 |
| | CPD | OPEN CARPORT DIRT FLOOR | 4 | 0 | 1990 | 396.0 |
| | OWP | OPEN WOOD PORCH W/STEPS | 4 | 0 | 1990 | 288.0 |
| | OWP | OPEN WOOD PORCH W/STEPS | 4 | 0 | 1990 | 150.8 |
Sketch
Property Image
Land
| 1 | 18 | AC (02.01-03.00) | 2.5100 | 109335.60 | 0.00 | 0.00 | 1.00 | $250,000 | $0 |
Roll Value History
| 2026 | N/A | N/A | N/A | N/A | N/A |
| 2025 | $145,356 | $250,000 | $0 | $395,356 | $395,356 |
| 2024 | $151,043 | $230,000 | $0 | $381,043 | $381,043 |
| 2023 | $134,753 | $220,000 | $0 | $354,753 | $354,753 |
| 2022 | $125,110 | $210,000 | $0 | $335,110 | $335,110 |
| 2021 | $84,615 | $160,000 | $0 | $244,615 | $244,615 |
| 2020 | $83,286 | $130,000 | $0 | $213,286 | $213,286 |
| 2019 | $67,412 | $180,000 | $0 | $247,412 | $247,412 |
| 2018 | $69,210 | $170,000 | $0 | $239,210 | $239,210 |
| 2017 | $71,008 | $150,000 | $0 | $221,008 | $221,008 |
| 2016 | $65,615 | $120,000 | $0 | $185,615 | $185,615 |
| 2015 | $55,996 | $90,000 | $0 | $145,996 | $145,996 |
| 2014 | $57,862 | $80,000 | $0 | $137,862 | $137,862 |
| 2013 | $59,728 | $102,000 | $0 | $161,728 | $161,728 |
| 2012 | $61,596 | $102,000 | $0 | $163,596 | $163,596 |
| 2011 | $63,461 | $120,000 | $0 | $183,461 | $183,461 |
| 2010 | $69,597 | $120,000 | $0 | $189,597 | $189,597 |
| 2009 | $73,510 | $130,000 | $0 | $203,510 | $203,510 |
| 2008 | $75,720 | $118,000 | $0 | $193,720 | $193,720 |
| 2007 | $77,859 | $89,500 | $0 | $167,359 | $167,359 |
Deed and Sales History
| 1 | 08/27/2024 | WD | Warranty Deed | NEUGEBAUER, KAILEY | BIERER, RYAN J | | | $465,000.00 | 61120 | 4576476 |
| 2 | 12/11/2021 | WD | Warranty Deed | SCOTT JR, FRANCIS E | NEUGEBAUER, KAILEY | | | $420,000.00 | 51378 | 4536195 |
| 3 | 05/21/2018 | WD | Warranty Deed | WALKER, LANDON | SCOTT JR, FRANCIS E | | | $254,500.00 | 34441 | 4445826 |
| 4 | 06/08/2015 | WD | Warranty Deed | BAUMGARDNER, KELLY W | WALKER, LANDON | | | $208,000.00 | 20322 | 4381479 |
| 5 | 01/25/2002 | WD | Warranty Deed | PRESHER, STEVEN D | BAUMGARDNER, KELLY W | | | $126,000.00 | 20365 | 4009777 |
| 6 | 04/01/1993 | QCD | Quit Claim Deed | PRESHER, STEVEN D | PRESHER, STEVEN D | | | $0.00 | 31504 | 93007738 |
| 7 | 04/01/1990 | WD | Warranty Deed | PRESHER, STEVEN D | PRESHER, STEVEN D | | | $19,000.00 | 2312 | 90007552 |
| 8 | 02/01/1990 | OTHER | Other - Misc. Documents | JACOBS, WILLIAM J | PRESHER, STEVEN D | | | $0.00 | 11111111 | 0 |
| 9 | 06/01/1978 | OTHER | Other - Misc. Documents | Unknown | JACOBS, WILLIAM J | | | $10,500.00 | 82671 | 334243 |
Payout Agreement
| No payout information available.. |