| 1 | 01/08/2020 | WD | Warranty Deed | STRIETZEL, WES | GOLDIE INVESTMENT, LLC | | | $2,900,000.00 | 41795 | 4479237 |
|   | |
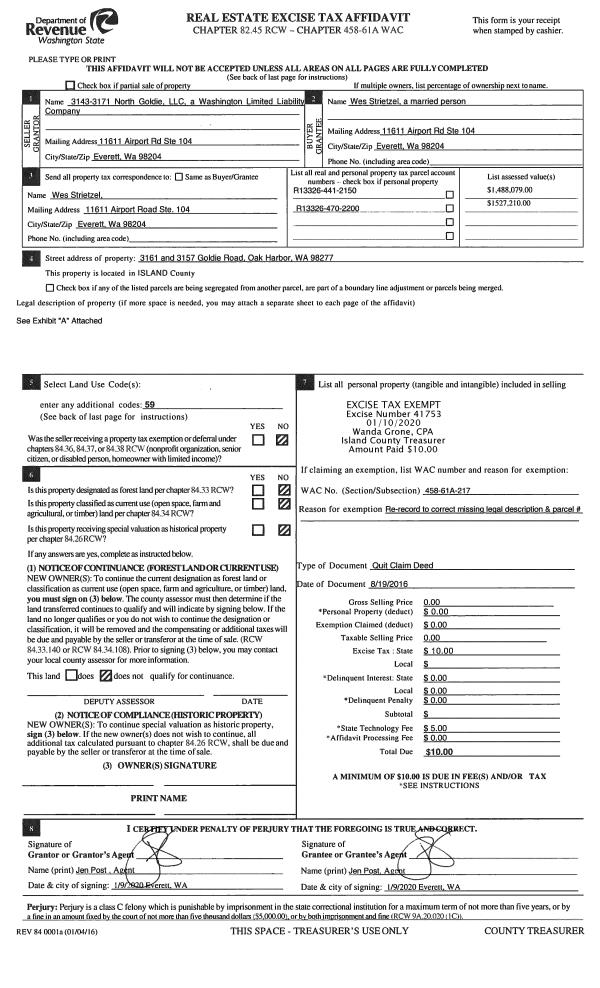
| 2 | 08/19/2016 | QCD | Quit Claim Deed | 3143-3171 NORTH GOLDIE LLC | STRIETZEL, WES | | | $0.00 | 41753 | 4479010 |
| 3 | 08/19/2016 | QCD | Quit Claim Deed | 3143-3171 NORTH GOLDIE LLC | STRIETZEL, WES | | | | 41753 | 4479010 |
| 4 | 08/19/2016 | QCD | Quit Claim Deed | 3143-3171 NORTH GOLDIE LLC | STRIETZEL, WES | | | $0.00 | 25837 | 4405958 |
| 5 | 06/25/2013 | WD | Warranty Deed | UNION STREET HOLDINGS LLC | 3143-3171 NORTH GOLDIE LLC | | | $1,475,000.00 | 11986 | 4343798 |
|   | |
| 6 | 07/02/2012 | TRUSTEED | Trustee's Deed | OTTO PARKING LLC | UNION STREET HOLDINGS LLC | | | $2,162,557.00 | 8148 | 4318581 |
|   | |
| 7 | 03/07/2006 | WD | Warranty Deed | WILLSON, JAMES M | OTTO PARKING LLC, | | | $1,426,000.00 | 61046 | 4164459 |
| 8 | 12/08/2004 | WD | Warranty Deed | MASSEY, WM L | WILLSON, JAMES M | | | $1,192,880.00 | 45741 | 4120307 |
| 9 | 08/01/1989 | OTHER | Other - Misc. Documents | Unknown | MASSEY, WM L | | | $0.00 | 63261 | 89010550 |